乐玩lewin国际

上海乐玩lewin国际电力

继电器制造商
lewin乐玩·(中国区)有限公司官网

咨询服务热线139-6888-3630
继电器选型
乐玩lewin国际> 技术文章>中间继电器

联系乐玩lewin国际

  • JZB-13B保持中间继电器
  • 文章类别:中间继电器
  • 文章概述
  • 产品分类

    询价留言

    JZB-13B用途
    JZB-13B保持中间继电器,此类继电器具有自保持绕组,用于直流操作的继电器保护回路中,以增加主保护继电器的触点数量和接点容量,并提高触点工作的可靠性。
    JZB-13B、12B、13B、16B为电压动作,电流保持的中间继电器;JZB-14B为电流动作,电压保持的中间继电器;JZB-15B可电流或电压动作,电流保持或电压保持的中间继电器。
    JZB-13B原理及结构
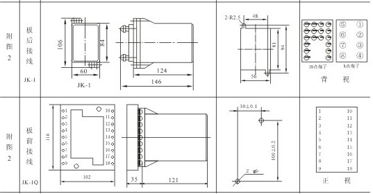
    本继电器由电子元件和小型大功率继电器组成继电器采用JK-1壳体结构,其外形及开孔尺寸见附图。
    JZB-13B主要技术数据
    JZB-13B静态保持中间继电器;
    JZB-13B内部端子图

    JZB-13B内部端子图

    注:带保持线圈的触点为保持触点

    JZB-13B外形及安装开孔尺寸图见附图2

    JZB-13B外形及安装开孔尺寸

    *主题:

    称呼:

    邮箱:

    公司:

    *电话:

    传真:

    备注:

    *验证码: