乐玩lewin国际

上海乐玩lewin国际电力

继电器制造商
lewin乐玩·(中国区)有限公司官网

咨询服务热线139-6888-3630
继电器选型
乐玩lewin国际> 技术文章>时间继电器

联系乐玩lewin国际

  • DS-21、DS-21C磁式时间继电器
  • 文章类别:时间继电器
  • 文章概述
  • 产品分类

    询价留言

    DS-21、DS-21C用途
    DS-21、DS-21C电磁式时间继电器(以下简称继电器)作为各种保护和自动线路中的辅助元件,用以使被控制元件的动作得到可调节的延时.
    DS-21、DS-21C结构和工作原理

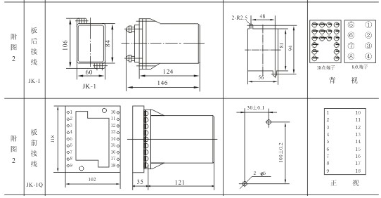
    继电器采用JK–1型壳体,其外形尺寸、背后端子及安装开孔图见附录,背后端子接线图见图1。电源从端子○1与○13输入.

    DS-21、DS-21C结构和工作原理

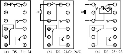
    DS–20系列时间继电器是带有延时机构的吸入式电磁继电器。其中DS–21~DS–24是短时带电的时间继电器;DS–21/C~DC–24/C是长期带电的时间继电器。DS–25~28是交流时间继电器。
    该继电器具有一副瞬动转换触点,一副滑动主触点和一副延时终止主触点。
    当电压加在线圈两端时,唧子(铁心)克服塔形弹簧的反作用力被吸入,瞬动动合触点闭合,动断触点断开。同时延时机构开始启动,经过一定的整定时间后,先闭合滑动主触点,再经过一定时间后,闭合终止动合触点从而得到所需延时。当线圈断电时,在塔形弹簧作用下,使唧子和延时机构返回原位。从加电压于线圈的瞬间起,到延时动合主触点的闭合为止这段时间,可借移动静触点位置方法调整,并由指针在刻度盘上指出。

    DS-21、DS-21C技术要求

    1. 各种型号继电器主要技术数据列于表1中。
    2. 继电器的动作电压对于DS–21~24不大于70%额定电压;对于DS–21/C~24/C不大于75%
    额定电压。DS–25~28不大于85%额定电压。
    3.继电器的返回电压不低于5%额定电压。
    4.继电器主触点延时一致性不大于表2中的规定。
    5.继电器主触点延时整定值误差应符合表3规定。

    DS-21、DS-21C技术要求

    6.热稳定性:当环境温度为40℃时,DS–21~DS–24继电器的线圈耐受110%额定电压历时2分钟,温升不超过65℃;对于DS–25~28中380V继电器线圈耐受110%额定电压历时1.5分钟,温升不超过65℃;对于DS–25~28中220V、127V、110V继电器以及DS–21/C~DS–24/C继电器的线圈长期耐受110%额定电压,温升不超过65℃。
    7.在额定电压下的功率消耗:对于DS–21~DS–24不大于10W;对于DS–25~28不大于35VA;对于DS–21/C~DS–24/C不大于7.5W。
    8.触点断开容量
    直流有感(τ=5ms)回路,U≤250V,I≤1A,主触点和瞬动触点为50W。
    9.介质强度
    继电器各导电电路连在一起与外露的非带电金属部分及外壳之间,能承受2kV(有效值),50Hz的交流电压历时1min试验,耐无绝缘击穿或闪络现象。
    10.电寿命5×103次,机械寿命104次。
    11.继电器主触点长期闭合电流5A,瞬动触点长期闭合电流5A。
    12.继电器的重量约0.7kg。

    DS-21、DS-21C调试方法
    1.机械调整:
      a. 用手将电磁铁的唧子按到吸合位置,延时机构应立即启动,直至延时触点闭合为止,此时瞬动触点应可靠转换。
      b. 释放唧子时(在工作位置)动触点应迅速返回原位,瞬动动断触点闭合,动合触点应断开。
      c 检查继电器内部接线的牢靠程度及所有螺钉,螺母是否紧固。
      d. 当唧子吸入电磁铁时,唧子端部的动片不得与延时机构中的扇形齿板相碰,若相碰时,可将动片下移至适当位置,然后将螺钉固紧。
      e. 当两副主触点的指针指示在零位时, 第一副动触点的中心应与滑动主触点的中心相切。第二副动触点的中心应与终止主触点的中心相切(目视),并有不小于0.5mm的超行程。
      f. Γ形动板在任何位置,均应使瞬动切换触点的动断触点可靠断开(两触点距离不得小于1.5mm),动合触点可靠闭合(超行程不小于0.5mm)。
    2.电气性能校验及调整:
      a. 动作电压:在70%额定电压下冲击地加电压于继电器线圈,此时继电器应可靠地动作,若动作电压过高,应检查塔形弹簧弹力是否过强,唧子在黄铜管内磨擦是否较大,瞬动动合触点压力是否过大,应调整瞬动触点压力,以便达到动作电压。
      注:DS–21/C~DS–24/C加75%额定电压;DS–25~DS–28加85%额定电压。
    b. 返回电压:当继电器电压降至5%额定电压,继电器不能可靠返回原位时,应检查唧子与铜管之间摩擦是否过大,塔形弹簧弹力是否较弱,动触点与静触点超行程是否过大,如果是,均应适当调整或更换。
      c. 动作时间检验:
    ⑴ 延时一致性:在同一整定点上10次测量中较大与较小值之差,不应超出表2规定。
    ⑵ 整定值误差:10次测量平均值与整定值之差不应超过表3规定。
      d. 触点工作可靠性检验:检验根据实际所带负荷情况检查滑动、瞬动及终止触点工作的可靠性,触点在闭合和断开中不应发生火花和弧光。
    DS-21、DS-21C订货须知
    定货时请指明继电器的型号、名称、额定电压值及安装方式。
    DS-21、DS-21C外形壳体及安装尺寸图
    DS-21、DS-21C外形壳体及安装尺寸图

    *主题:

    称呼:

    邮箱:

    公司:

    *电话:

    传真:

    备注:

    *验证码: